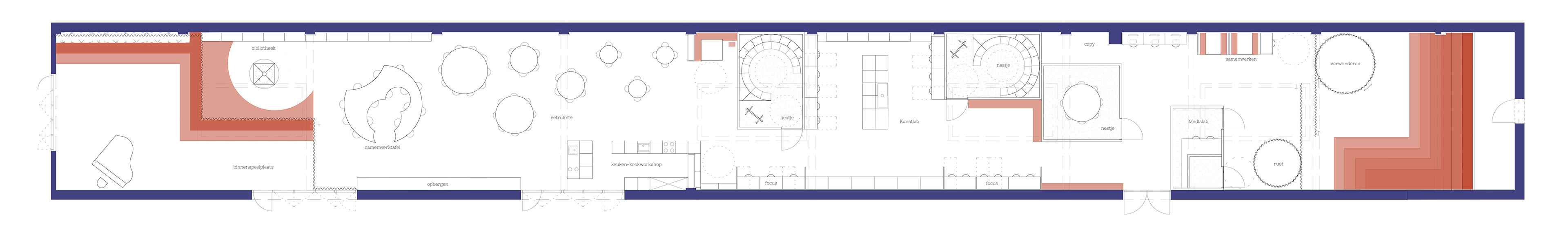
Verwonderwijs is een tijdelijke invulling van de Walstroom als kindcentrum of school van de 21ste eeuw. Het uigangspunt is dat de tijdelijkheid van het ontwerp de sfeer en de functionaliteit niet in de weg mag staan. De herbruikbare, ecologische en biodegradeerbare materialen zijn zo gekozen en samengebracht in de ruimte dat ze voor een rustige speelse en taktiele sfeer zorgen.  De leerlingen kunnen geborgenheid vinden op verschillende plekken in de lange smalle ruimte. Samen met het flexibel gebruik van de meubels zorgt dit voor de beste ondersteuning voor het individuele proces van de leerlingen.
De buitenruimte is een onmisbaar deel van het geheel. Geen traditionele speelplaats maar ruimte om te sporten, te ontdekken en bij te leren in de buitenklassen.  De bestaande betonnen buitenvloer wordt plaatselijk verwijderd en aan gevuld met gestampte leem om de waterdoorlaatbaarheid van de bodem te verbeteren.
De onverharde grond wordt begrensd door de moestuin.
De composttoiletjes bevinden zich ook in de buitenruimte, enerzijds om de kinderen tot beweging aan te zetten en anderzijds om de compostcontainers gemakkelijk te kunnen afvoeren.


Een dag op  Verwonderwijs

8:00 aankomst: spelen!
8:30 zelfstandig werk
9:00 kringgesprek
10:00 zelfstandig werk
10:30 instructie
11:00 zelfstandig werk
11:30 coaching
12:00 lunch
12:30 kano varen
13:30 verwondersessie
14:30 projectwerk
15:30 volleybal tornooi
17:00 moestuin
eetzaal
nestjes​​​​​​​